Pokaż Brzeg Dolny, ul. Odrodzenia na większej mapie
Zachęcamy Państwa do zapoznania się z aktualnie przeprowadzoną inwestycją mieszkaniową dewelopera UNIDOM Sp. z o.o. Sp.k. na terenie Brzegu Dolnego. Wyróżnikiem projektowanych i budowanych przez nas nieruchomości jest znakomite połączenie aspektu funkcjonalnego oraz estetycznego. Zakończony nowy budynek mieszkaniowy zlokalizowany jest obok Rynku, przy ul. Odrodzenia 15 ABC, w atrakcyjnej części miasta, cechującej się spokojną okolicą, bliskością parku miejskiego, a jednocześnie niedużą odległością od punktów handlowo-usługowych, placówek oświatowych i węzłów komunikacyjnych.
W tym budynku oferujemy Państwu ostatnie gotowe do sprzedaży mieszkania, znajdujące się w 3-klatkowym, 4-kondygnacyjnym, niepodpiwniczonym budynku. W każdej klatce znajduje się 11, a w całym budynku 33 mieszkania. Pozostałe wolne mieszkania to lokale dwupokojowe z balkonami i komórkami lokatorskimi. Ogrzewanie indywidualne z dwufunkcyjnego kotła gazowego z zamkniętą komorą spalania. Zastosowane w budynku rozwiązania przegród budowlanych oraz urządzenia instalacyjne spełniają wymagania oszczędności energii; zastosowano wydajny osprzęt instalacyjny, a przegrody posiadają współczynniki przenikania ciepła niższe niż w wymaganiach przepisów.
Oferujemy mieszkania w cenie od 3 300 zł/m2, z balkonem i komórką lokatorską gratis.
Mieszkania w tym budynku spełniają kryteria uzyskania preferencyjnego kredytu Mieszkanie dla Młodych.
W dniu 6 czerwca 2013 r. dla budynku zostało wydane pozwolenie na użytkowanie.
Zapraszamy do zapoznania się z ofertą ostatnich dostępnych mieszkań.
Brak wolnych mieszkań!
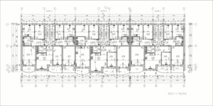
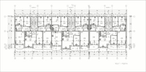
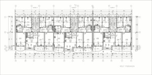
Wybierz piętro lub mieszkanie, aby obejrzeć je na planie budynku.
| Projektowy numer mieszkania | Adres mieszkania: ul. Odrodzenia | Powierzchnia użytkowa | Wartość brutto | Dostępność | |
|---|---|---|---|---|---|
|
Parter |
M-1 | 15C/1 | 38,5 m2 | Sprzedane | |
| M-2 | 15C/2 | 51,8 m2 | Sprzedane | ||
| M-12 | 15B/1 | 43,6 m2 | Sprzedane | ||
| M-13 | 15B/2 | 57,1 m2 | Sprzedane | ||
| M-23 | 15A/1 | 39,1 m2 | Sprzedane | ||
| M-24 | 15A/2 | 51,2 m2 | Sprzedane | ||
|
I piętro |
M-3 | 15C/3 | 46,8 m2 | Sprzedane | |
| M-4 | 15C/4 | 39,0 m2 | Sprzedane | ||
| M-5 | 15C/5 | 51,2 m2 | Sprzedane | ||
| M-14 | 15B/3 | 48,2 m2 | Sprzedane | ||
| M-15 | 15B/4 | 43,2 m2 | Sprzedane | ||
| M-16 | 15B/5 | 57,3 m2 | Sprzedane | ||
| M-25 | 15A/3 | 46,0 m2 | Sprzedane | ||
| M-26 | 15A/4 | 39,5 m2 | Sprzedane | ||
| M-27 | 15A/5 | 50,9 m2 | Sprzedane | ||
|
II piętro |
M-6 | 15C/6 | 46,5 m2 | Sprzedane | |
| M-7 | 15C/7 | 38,9 m2 | Sprzedane | ||
| M-8 | 15C/8 | 51,1 m2 | Sprzedane | ||
| M-17 | 15B/6 | 48,2 m2 | Sprzedane | ||
| M-18 | 15B/7 | 43,3 m2 | Sprzedane | ||
| M-19 | 15B/8 | 57,3 m2 | Sprzedane | ||
| M-28 | 15A/6 | 46,7 m2 | Sprzedane | ||
| M-29 | 15A/7 | 39,6 m2 | Sprzedane | ||
| M-30 | 15A/8 | 51,5 m2 | Sprzedane | ||
|
Poddasze |
M-9 | 15C/9 | 46,4 m2 | Sprzedane | |
| M-10 | 15C/10 | 37,5 m2 | Sprzedane | ||
| M-11 | 15C/11 | 52,2 m2 | Sprzedane | ||
| M-20 | 15B/9 | 48,2 m2 | Sprzedane | ||
| M-21 | 15B/10 | 41,7 m2 | Sprzedane | ||
| M-22 | 15B/11 | 55,7 m2 | Sprzedane | ||
| M-31 | 15A/9 | 46,5 m2 | Sprzedane | ||
| M-32 | 15A/10 | 38,4 m2 | Sprzedane | ||
| M-33 | 15A/11 | 51,0 m2 | Sprzedane | ||
Podane ceny są cenami brutto. Balkon i komórka lokatorska gratis!
Podane ceny i zestawienia nie są ofertą handlową w rozumieniu Kodeksu Cywilnego.
Panorama sferyczna 360° – kliknij w obrazek i rozejrzyj się dookoła