Pokaż Brzeg Dolny, ul. Ossolińskiego na większej mapie
Zakończyliśmy opracowywanie następnego projektu, jeszcze bardziej nowoczesnego budynku wielorodzinnego.
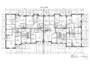
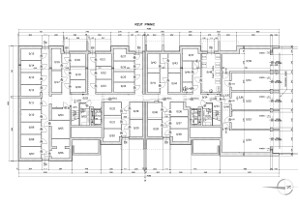
Przewidzieliśmy w nim 40 lokali mieszkalnych o zróżnicowanej powierzchni i układzie funkcjonalnym (dwu-, trzy- i czteropokojowe z aneksami kuchennymi lub kuchniami), w dwóch klatkach schodowych, z windami zjeżdżającymi do poziomu piwnic, gdzie oprócz komórek lokatorskich, będzie pięć garaży indywidualnych.
Innowacyjnie rozwiązaliśmy sposób ogrzewania mieszkań i przygotowania ciepłej wody użytkowej, realizowane przez umieszczony w piwnicy zestaw powietrznych pomp ciepła renomowanej japońskiej firmy Daikin® ze zintegrowanymi akumulatorami wodnymi, podgrzewającymi przepływowo wodę użytkową, zabezpieczając ją przed występowaniem bakterii legionella.
Zasilanie pomp ciepła wspomagane będzie przez zainstalowane na dachu ogniwa fotowoltaiczne. Decydując się na takie rozwiązania będzie to najtańszy w utrzymaniu budynek wielorodzinny w Polsce.
Dzięki zastosowaniu energooszczędnych materiałów oraz nowoczesnych urządzeń, główne koszty eksploatacji mieszkania (ogrzewanie i ciepła woda) wynosić będą ok. 10 zł/m2 na rok (0,80 zł/m2 miesięcznie). Do tego precyzyjne opomiarowanie mieszkań – liczniki wody zimnej, ciepłej i c.o. umieszczone na klatce schodowej.
Pozostałe elementy budynku pozostawiamy bez zmian.
Przedstawiony materiał nie jest ofertą handlową w rozumieniu kodeksu cywilnego.
Wybierz piętro lub mieszkanie, aby obejrzeć je na planie budynku.
| Lokal | Opis | Powierzchnia | Wartość | Status | |
|---|---|---|---|---|---|
|
Parter |
M-0.1 | 3 pokoje z aneksem kuchennym, balkon 5,6 m2 | 62,9 m2 | Sprzedane | |
| M-0.2 | 4 pokoje z aneksem kuchennym, balkon 4,9 m2 | 65,5 m2 | Sprzedane | ||
| M-0.3 | 2 pokoje z kuchnią, balkon 4,9 m2 | 52,7 m2 | Sprzedane | ||
| M-0.4 | 2 pokoje z aneksem kuchennym, balkon 4,7 m2 | 43,1 m2 | Sprzedane | ||
| M-0.5 | 4 pokoje z aneksem kuchennym, balkony 5,0 i 3,4 m2 | 75,4 m2 | Sprzedane | ||
| M-0.6 | 2 pokoje z aneksem kuchennym, balkon 3,8 m2 | 37,5 m2 | Sprzedane | ||
| M-0.7 | 3 pokoje z aneksem kuchennym, balkony 5,0 i 3,8 m2 | 62,3 m2 | Sprzedane | ||
| M-0.8 | 3 pokoje z aneksem kuchennym, balkon 5,0 m2 | 47,2 m2 | Sprzedane | ||
|
I piętro |
M-1.1 | 3 pokoje z aneksem kuchennym, balkon 5,7 m2 | 62,8 m2 | Sprzedane | |
| M-1.2 | 4 pokoje z aneksem kuchennym, balkon 5,4 m2 | 65,3 m2 | Sprzedane | ||
| M-1.3 | 2 pokoje z kuchnią, balkon 5,4 m2 | 52,5 m2 | Sprzedane | ||
| M-1.4 | 2 pokoje z aneksem kuchennym, balkon 5,2 m2 | 43,0 m2 | Sprzedane | ||
| M-1.5 | 4 pokoje z aneksem kuchennym, balkony 5,5 i 3,9 m2 | 75,4 m2 | Sprzedane | ||
| M-1.6 | 2 pokoje z aneksem kuchennym, balkon 4,2 m2 | 37,4 m2 | Sprzedane | ||
| M-1.7 | 3 pokoje z aneksem kuchennym, balkony 5,8 i 4,2 m2 | 62,5 m2 | Sprzedane | ||
| M-1.8 | 3 pokoje z aneksem kuchennym, balkon 5,8 m2 | 47,8 m2 | Sprzedane | ||
|
II piętro |
M-2.1 | 3 pokoje z kuchnią, balkon 5,7 m2 | 62,8 m2 | Sprzedane | |
| M-2.2 | 4 pokoje z aneksem kuchennym, balkon 5,4 m2 | 65,3 m2 | Sprzedane | ||
| M-2.3 | 2 pokoje z kuchnią, balkon 5,4 m2 | 52,5 m2 | Sprzedane | ||
| M-2.4 | 2 pokoje z aneksem kuchennym, balkon 5,2 m2 | 43,0 m2 | Sprzedane | ||
| M-2.5 | 4 pokoje z aneksem kuchennym, balkony 5,5 i 3,9 m2 | 75,4 m2 | Sprzedane | ||
| M-2.6 | 2 pokoje z aneksem kuchennym, balkon 4,2 m2 | 37,4 m2 | Sprzedane | ||
| M-2.7 | 3 pokoje z kuchnią, balkony 5,8 i 4,2 m2 | 62,2 m2 | Sprzedane | ||
| M-2.8 | 3 pokoje z aneksem kuchennym, balkon 5,8 m2 | 47,8 m2 | Sprzedane | ||
|
III piętro |
M-3.1 | 3 pokoje z aneksem kuchennym, balkon 5,7 m2 | 62,6 m2 | Sprzedane | |
| M-3.2 | 4 pokoje z aneksem kuchennym, balkon 5,4 m2 | 65,2 m2 | Sprzedane | ||
| M-3.3 | 2 pokoje z kuchnią, balkon 5,4 m2 | 52,3 m2 | Sprzedane | ||
| M-3.4 | 2 pokoje z aneksem kuchennym, balkon 5,2 m2 | 42,8 m2 | Sprzedane | ||
| M-3.5 | 4 pokoje z aneksem kuchennym, balkony 5,5 i 3,9 m2 | 75,1 m2 | Sprzedane | ||
| M-3.6 | 2 pokoje z aneksem kuchennym, balkon 4,2 m2 | 37,2 m2 | Sprzedane | ||
| M-3.7 | 3 pokoje z aneksem kuchennym, balkony 5,8 i 4,2 m2 | 62,2 m2 | Sprzedane | ||
| M-3.8 | 3 pokoje z aneksem kuchennym, balkon 5,8 m2 | 47,6 m2 | Sprzedane | ||
|
IV piętro |
M-4.1 | 3 pokoje z aneksem kuchennym, balkon 5,7 m2 | 62,5 m2 | Sprzedane | |
| M-4.2 | 4 pokoje z aneksem kuchennym, balkon 5,4 m2 | 65,1 m2 | Sprzedane | ||
| M-4.3 | 2 pokoje z kuchnią, balkon 5,4 m2 | 52,3 m2 | Sprzedane | ||
| M-4.4 | 2 pokoje z aneksem kuchennym, balkon 5,2 m2 | 42,8 m2 | Sprzedane | ||
| M-4.5 | 4 pokoje z aneksem kuchennym, balkony 5,5 i 3,9 m2 | 75,1 m2 | Sprzedane | ||
| M-4.6 | 2 pokoje z aneksem kuchennym, balkon 4,2 m2 | 37,2 m2 | Sprzedane | ||
| M-4.7 | 3 pokoje z aneksem kuchennym, balkony 5,8 i 4,2 m2 | 62,2 m2 | Sprzedane | ||
| M-4.8 | 3 pokoje z aneksem kuchennym, balkon 5,8 m2 | 47,5 m2 | Sprzedane | ||
|
Piwnice |
050 | Garaż | 24,2 m2 | Sprzedane | |
| 051 | Garaż | 16,6 m2 | Sprzedane | ||
| 052 | Garaż | 16,6 m2 | Sprzedane | ||
| 053 | Garaż | 16,6 m2 | Sprzedane | ||
| 054 | Garaż | 26,3 m2 | Sprzedane | ||